Arthur van Schendelstraat

3511MA Utrecht

Te huur: € 2.400

per maand
Woonoppervlakte
Woonopp.Woonoppervlakte
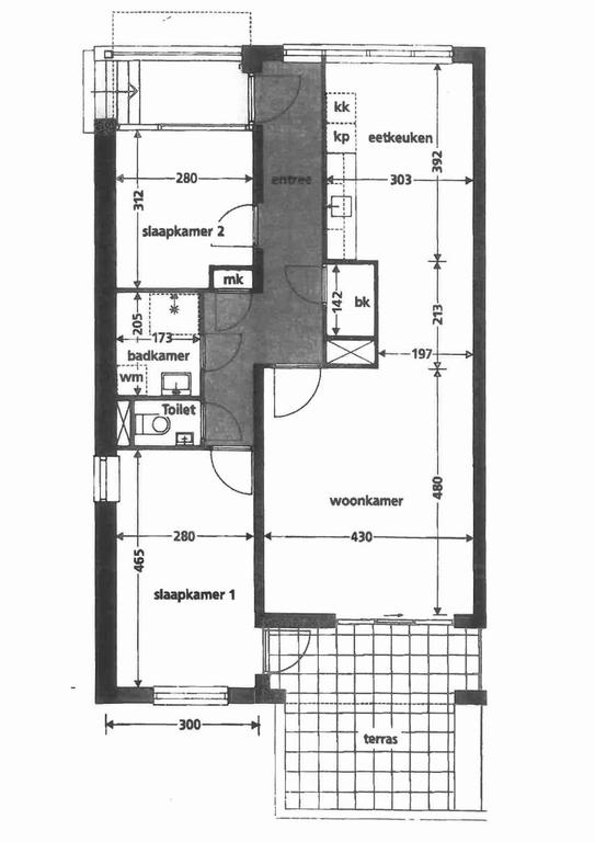
78 m2
Slaapkamers
Slaapkamers
2
Kamers
Kamers
3
Type woning Appartement
Huurprijs € 2.400 per maand
Beschikbaarheid Vanaf 01-06-2026
Oppervlakte 78 m2
Inhoud 225 m3
Energielabel A
Slaapkamers 2
Badkamers 1
Covers Wonen
Icon  Reageer
Reageren via HomeSearch is gratis en je hoeft hiervoor geen account aan te maken. De aanbieder van de huurwoning ontvangt direct je bericht.
 Delen via Whatsapp
Arthur van Schendelstraat
Indicatieve locatie huurwoning

Ander aanbod van Covers Wonen