's-GRAVENDIJKWAL, PARTLY UPHOLSTERED, OLD WEST, €1.785,- excl. G/L/W.
Located in a super central location, we offer an immediately available 2-room ground floor apartment with a spacious backyard.
What a unique city apartment!
The apartment has an open kitchen, smooth plastered walls, ceilings and a modern bathroom. The entire house has a neat laminate floor. The entire apartment was completely renovated in 2015. At the rear, the house has a very spacious rear garden and a closed parking space.
The high ceilings give a very spacious effect to the home.
While you enjoy a nice rest at home, you will be within walking distance of the city center or Central Station in no time. You don't need more than that, do you?
The location of the Oude West is central and dynamic and a better location hardly exists! It is a lively neighborhood in the center of Rotterdam with its own identity: cozy, diverse and lively. The two best-known shopping streets are West-Kruiskade and Nieuwe Binnenweg, which have emerged as popular places in recent years. There are many special shops and catering establishments here. Are you up for a fun outing? The Schouwburgplein with the De Doelen concert and conference building, the Pathé cinema and the Rotterdam Theater are a little further away and offer various (cultural) activities. Thanks to the prime location, you will never be bored! Within walking and/or cycling distance you can reach the bustling city center and Central Station for use of the train, metro, tram and bus. The Rotterdam ring road is also a 5-minute drive away. All daily amenities such as supermarkets, evening shops and sports activities can be found nearby. Discover the city atmosphere!
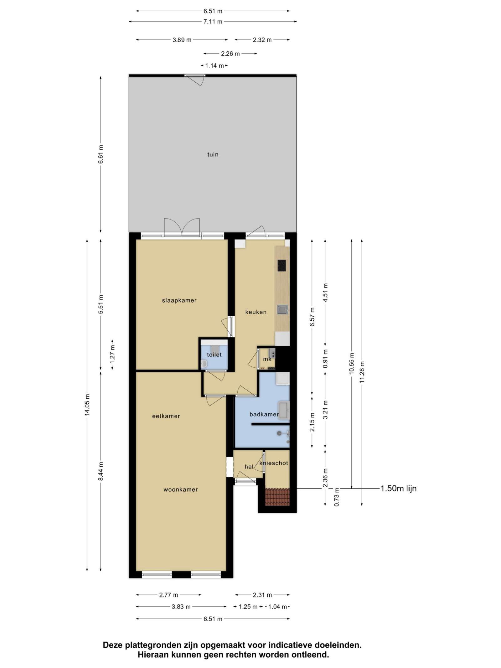
Layout:
Ground floor:
Entrance, hall, wardrobe, access to the bright living room (8.44 x 3.83 m) which is located at the front of the apartment. The kitchen (4.51 x 2.32 m) has a light color scheme and is equipped with a modern kitchen unit. The following built-in appliances are also present: a hob and an extractor hood.
Storage cupboard with central heating combination boiler (2015).
Renovated bathroom (3.21/2.15 x 2.31 m) with walk-in shower and washbasin.
Separate modern toilet
From the living room you reach the spacious bedroom (formerly two rooms) with very high ceilings 5.51/4.51 x 3.89/2.77 m) which is located at the rear.
Spacious veranda and access to the backyard of 7.10 x 6.61 m. At the rear there is a closed parking space.
Particularities:
- Spacious backyard;
- Own parking space on closed rear property.
- Heating and hot water via central heating combination boiler 2015;
- Energy label A
- Rental period 2 years.
House is suitable for 1 person or a couple.
Are you interested?
- tell us something about yourself and what you do.
- Gross income(s) at least 3 times the rental price (Please state).
Total rental price includes deliveries and services and excl. G/L/W.
Deposit is € 3.500,-
| Property type | Apartment |
| Rental price | Rented under reservation |
| Including |
Service costs
|
| Availabilty | As of 01-10-2025 |
| Available for | Undefinite period |
| Size | 82 m2 |
| Energy label | A |
| Interior | Upholstered |
| Persons | 2 persons |
| Bedrooms | 1 |
| Bathrooms | 1 |
| Pets allowed | yes |