Luxe volledig gestoffeerde bovenwoning met terras en het ultieme gevoel van privacy!
Centraal wonen in hartje Utrecht?! Dat kan aan de Lange Koestraat.
Recentelijk is deze luxe, zeer energiezuinige en gestoffeerde 3-kamer bovenwoning gerealiseerd en volledig strak afgewerkt.
Door het geschilderde balkenplafond ademt deze woning ondanks de moderne afwerking een hele authentieke sfeer.
De woning is voorzien van mooie PVC vloeren, moderne verlichting, raambekleding en een was-droogcombinatie en is per direct te betrekken.
Verwarmen en koelen gaat via de airconditioning. De Lange Koestraat is een rustig straatje in de stad Utrecht en ligt op steenworp afstand van het Centraal Station en de oude binnenstad.
Op slechts 1 straat afstand ligt het winkelgebied van het centrum van Utrecht, Vredenburgplein en het winkelcentrum Hoog Catharijne. Op drie vaste dagen (woensdag, vrijdag en zaterdag) wordt er markt gehouden op het Vredenburg.
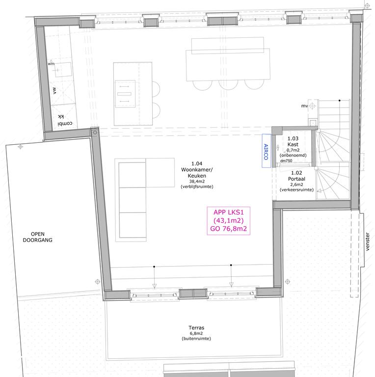
Indeling
Begane grond:
Eigen entree met trapopgang en meterkast.
Eerste verdieping:
Overloop met bergruimte.
Royale living met grote raampartijen aan de voorzijde en luxe moderne keuken met eiland v.v. alle inbouwapparatuur: combi-oven, koel-vriescombinatie, vaatwasser, spoelbak, inductiekookplaat
Aan de achterzijde bevinden zich de openslaande deuren/ramen naar het fijne privé terras.
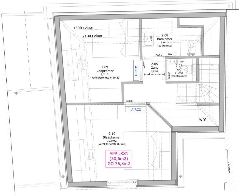
Tweede verdieping:
Trapopgang met links de ruimte met de was-droogcombinatie.
Aan de rechterzijde bevindt zich de deur naar de moderne badkamer met inloopdouche en wastafel.
Op deze verdieping bevinden zich 2 ruime slaapkamers.
Bijzonderheden:
- Huurprijs: € 2.650,- excl. electra, verwarming, waterverbruik, internet, televisie, gemeentelijke (huurders)lasten;
- Het voorschot voor electra, verwarming en water bedraagt € 150,- per maand met verrekening achteraf;
- De woning is voorzien van een eigen airco voor verwarmen en koeling;
- Stoffering, verlichting, was-droogcombinatie zijn bij de huur inbegrepen;
- De waarborgsom bedraagt 2 maanden huur;
- Inkomenseis: 3 keer de maandhuur (bruto);
- Geschikt voor een werkend stel of iemand alleen;
- Roken en huisdieren zijn niet toegestaan;
- Schoonmaakkosten bij vertrek bedragen € 425,- en worden met de waarborgsom verrekend;
- Aanvaarding: per 1 november 2025
--------------------------------------------------------------------------------------------------------------------------------------------------------
Luxurious, fully furnished upstairs apartment with a terrace and the ultimate feeling of privacy!
Living centrally in the heart of Utrecht?! It's possible on Lange Koestraat.
This luxurious, highly energy-efficient, and furnished three-bedroom upstairs apartment was recently completed and finished to a high standard.
The painted beamed ceiling gives this apartment a truly authentic feel, despite its modern finishes.
The apartment features beautiful PVC flooring, modern lighting, window coverings, and a washer-dryer combination, and is available for immediate occupancy.
Heating and cooling are provided by air conditioning. Lange Koestraat is a quiet street in Utrecht, just a stone's throw from Central Station and the old city center.
Just one street away is the shopping district of Utrecht city center, Vredenburgplein, and the Hoog Catharijne shopping center. A market is held at Vredenburg on three fixed days (Wednesdays, Fridays, and Saturdays).
Layout
Ground floor:
Private entrance with staircase and meter cupboard.
First floor:
Landing with storage space.
Spacious living room with large windows at the front and a luxurious modern kitchen with an island equipped with all built-in appliances: combination oven, fridge-freezer, dishwasher, sink, and induction cooktop.
At the rear are French doors/windows leading to the lovely private terrace.
Second floor:
Staircase with the washer-dryer on the left.
On the right is the door to the modern bathroom with a walk-in shower and sink.
There are two spacious bedrooms on this floor.
Details:
- Rent: €2,650 excluding electricity, heating, water, internet, television, and municipal (tenant) charges;
- The advance payment for electricity, heating, and water is €150 per month, payable in arrears;
- The house has its own air conditioning system for heating and cooling;
- Furnishings, lighting, and washer-dryer are included in the rent; - The deposit is 2 months' rent;
- Income requirement: 3 times the gross monthly rent;
- Suitable for a working couple or a single person;
- Smoking and pets are not permitted;
- Cleaning fees upon departure are €425 and will be deducted from the deposit;
- Availability: effective November 1, 2025
| Type woning | Appartement |
| Huurprijs | € 2.650 per maand |
| Beschikbaarheid | Vanaf 01-11-2025 |
| Oppervlakte | 77 m2 |
| Inhoud | 231 m3 |
| Energielabel | A++ |
| Slaapkamers | 2 |
| Badkamers | 1 |